Mit Erfolg zum Ziel: BauLand

Aktuelle Projekte

Die Übersicht stellt ausgewählte Projekte dar, welche die BauLand! Entwicklung GmbH gegenwärtig ressortübergreifend bearbeitet:

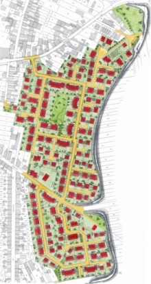
  • Wohnpark „Kurfürsten-Terrassen” in Oftersheim Nord-West
    eigenes Projekt    [BILD]
     
  • BauLandEntwicklung “Auf den Ketscher Weg” in Oftersheim
    Auftraggeber Gemeinde Oftersheim     [BILD]
     
  • Wohngebiet „Bruchhäuser Weg“ in Plankstadt,
    Auftraggeber Gemeinde Plankstadt     [BILD]
     
  • Wohnpark „Am Biegen“ in Oftersheim,
    Auftraggeber Gemeinde Oftersheim    [BILD]
     
  • „Ökologisches Wohngebiet Lange Sandäcker II“ in Schwetzingen,
    Auftraggeber Große Kreisstadt Schwetzingen    [BILD]
     
  • Wohnpark „Hebelgarten“ in Plankstadt,
    eigenes Projekt    [BILD]
     
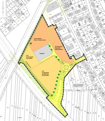
  • Gewerbegebiet „Hammelsäcker-Südzucker“ in Oberh.-Rheinhausen, Auftraggeber Gemeinde Oberhausen-Rheinhausen    [BILD]
     
  • Wohngebiet „Erlengewann“ in Oberhausen-Rheinhausen
    Auftraggeber Gemeinde Oberhausen-Rheinhausen    [BILD]
[Home] [Kurzdarstellung] [Aktuelles] [Projekte] [Grundstücksangebote] [Impressum]